Wyremontowane, 2 pokojowe mieszkanie z LOGGIĄ tylko 5295/m2
Słupsk Pokaż na mapie ›
Odświeżone: Czwartek, 14 Maj, 2026 08:56
310 000 zł
5244 zł/m2
Szczegóły ogłoszenia
- Kategoria: Mieszkania / Sprzedaż
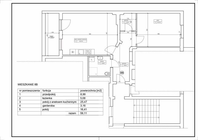
- Powierzchnia:59,11 m2
- Liczba pokoi:2 pokoje
- Zabudowa:Kamienica
- Sprzedaż:Bez pośredników
- Cena: 310 000 zł / 5244 zł/m2
- Ulica: Mickiewicza
Opis oferty
Mieszkanie w stanie deweloperskim. Lokal zlokalizowany jest w kamienicy na 3 piętrze przy ul. Mickiewicza w Słupsku. Powierzchnia lokalu- 59,11 m2, składa się z przestronnego korytarza, sypialni, garderoby, dużego pokoju dziennego z aneksem kuchennym oraz dużej loggi 5,86m2. Nowa instalacja elektryczna w tym także trójfazowa wraz z rozdzielnicą. Nowa, kompletna instalacja hydrauliczna wraz z zabudową stelażem podtynkowym. Łazienka przygotowana do montażu glazury. Nowe drzwi akustyczne firmy KMT. Lokal przygotowany pod ogrzewanie gazowe lub opcjonalnie elektryczne (wyprowadzone przyłącza do kotła gazowego oraz kaloryferów a także przyłącza 3-fazowe np. do pieców akumulacyjnych). Wysoki sufit (310cm), umożliwia stworzenie antresoli. Możliwość zabudowy loggi i stworzenia kolejnego pomieszczenia. Mieszkanie ciepłe- położenie środkowe. Miejsce dobrze skomunikowane (w pobliżu rynek 150m, Kaufland 300 m, Biedronka 400, Lidl 450 m, przystanek 300 m). Do nieruchomości należą udziały w podwórku (możliwość parkowania). Możliwość wydzielenia dodatkowego pomieszczenia w dużym pokoju. Niski, miesięczny czynsz do wspólnoty- około 160 zł. Sprzedaż bezpośrednia- bez prowizji pośredników. Korzystna cena- 5295zł /m2.Sprawdź zainteresowanie tym ogłoszeniem
Wyświetlenia
Data dodania
Ostatnio widziany
Obserwujących
Wysłane zapytania
Odsłony telefonu
Powiadom o podobnych ogłoszeniach
Lokalizacja: Słupsk
Kategoria: Nieruchomości » Mieszkania » Sprzedaż
Cena: od 263500 zł do 356500 zł Powierzchnia : od 50 m2 do 68 m2
Chcę otrzymywać powiadomienia o nowych ofertach
Konrad
Konto prywatne
Na Lento.pl od 08 mar 2026
Strona użytkownika
- Wypromuj ogłoszenie
- Zgłoś naruszenie
- Drukuj ulotkę
- Edytuj/usuń ogłoszenie
- Udostępnij ogłoszenie
- Dodaj na Facebook





















