Przestronne 4-pok mieszkanie na parterze w centrum ul. Micki
Słupsk Pokaż na mapie ›
Odświeżone: Niedziela, 07 Grudzień, 2025 16:24
529 000 zł
5528 zł/m2
Szczegóły ogłoszenia
- Kategoria: Mieszkania / Sprzedaż
- Powierzchnia:95,69 m2
- Liczba pokoi:4 pokoje
- Zabudowa:Kamienica
- Piętro :Parter
- Rynek:Wtórny
- Sprzedaż:Bez pośredników
- Inf. dodatkowe:Piwnica
- Cena: 529 000 zł / 5528 zł/m2
- Ulica: Mickiewicza 22
Opis oferty
Przestronne 4-pokojowe mieszkanie z potencjałem – parter kamienicy przy ul. Mickiewicza w SłupskuNa sprzedaż wyjątkowe, jasne i przestronne mieszkanie o powierzchni 95,69 m², położone na wysokim parterze odrestaurowanej kamienicy w sercu Słupska. Lokal mieści się przy ul. Mickiewicza – w spokojnej, a zarazem doskonale skomunikowanej części miasta.
Mieszkanie wyróżnia się funkcjonalnym, w pełni rozkładowym układem pomieszczeń oraz imponującą wysokością sufitów (aż 3,2 m!), co daje niesamowite poczucie przestrzeni i umożliwia kreatywną aranżację wnętrz. Dodatkowym atutem jest oddzielna spiżarnia z możliwością adaptacji na praktyczną garderobę.
W 2022 roku budynek przeszedł kompleksowy remont, dzięki czemu nowi właściciele mogą cieszyć się solidnym standardem części wspólnych. Do mieszkania przynależą aż dwie piwnice, co zapewnia dodatkową przestrzeń do przechowywania.
To idealna propozycja nie tylko dla rodzin, ale również dla osób poszukujących miejsca na cichą działalność – mieszkanie świetnie sprawdzi się np. jako gabinety kosmetyczne czy biura. Niski czynsz do wspólnoty czyni tę ofertę jeszcze bardziej atrakcyjną.
Dostępne miejsca parkingowe na podwórku – wystarczy identyfikator wspólnoty.
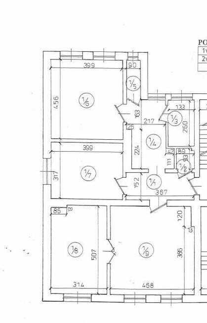
Na ostatnim zdjęciu rzut mieszkania:
1/1 korytarz
1/2 WC
1/3 łazienka
1/4 kuchnia
1/5 spiżarnia
1/6 pokój gościnny
1/7 sypialnia
1/8 sypialnia
1/9 salon
Oferta bezpośrednio od właściciela – zapraszam do kontaktu i umówienia się na prezentację!
Sprawdź zainteresowanie tym ogłoszeniem
Wyświetlenia
Data dodania
Ostatnio widziany
Obserwujących
Wysłane zapytania
Odsłony telefonu
Powiadom o podobnych ogłoszeniach
Lokalizacja: Słupsk
Kategoria: Nieruchomości » Mieszkania » Sprzedaż
Cena: od 449500 zł do 608500 zł Powierzchnia : od 82 m2 do 110 m2
Chcę otrzymywać powiadomienia o nowych ofertach
BesterGym
Konto firmowe
Na Lento.pl od 01 lis 2018
Strona użytkownika
- Wypromuj ogłoszenie
- Zgłoś naruszenie
- Drukuj ulotkę
- Edytuj/usuń ogłoszenie
- Udostępnij ogłoszenie
- Dodaj na Facebook



























